60 logements BBC+ et locaux d’activités
Mission
Architectes et paysagistes
maitrise d’œuvre complète études et suivi des travaux
Maître d’ouvrage
Virgil & Axis Immobilier
Surface Plancher 12 850 m²
Montant des travaux 13 000 000 euros ht
Patrimoine et reconversion
Sur ce site remarquable, à proximité de la Canebière et du vieux port, c’est un immeuble « pluriel » qui renforce l’attractivité de la rue Saint Ferréol et accueille une nouvelle population résidentielle.
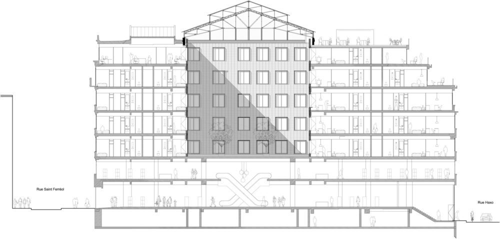
Le nouveau programme présente des commerces sur deux niveaux, des logements aménagés du R+2 au R+5 selon une typologie allant du studio à des appartements en colocation et des espaces communs : un restaurant sur le toit aménagé sous l’ancienne verrière, un co-working au R+6, une salle de sport pour les résidents.
La réhabilitation du bâtiment des anciennes Galeries Lafayette réunit deux objectifs majeurs : réaliser une réhabilitation dans le respect du patrimoine bâti, effectuer une reconversion adaptée aux nouveaux programmes et usages.
La façade sur la rue Saint Ferréol est redéfinie par des vitrines de type double hauteur. Les parties pleines maçonnées reprennent le rythme de la façade supérieure, et les anciens meneaux des menuiseries sont repris au rez-de-chaussée par des éléments métalliques et bois.
Les matériaux sont l’acier pour les menuiseries extérieures du rez-de-chaussée et niveau 1, le bois peint pour les menuiseries des autres niveaux, et de l’enduit de couleur claire pour les éléments de maçonnerie.
Etant donné la grande profondeur du bâtiment (environ 60 m x 25 m), le vide central est restitué et la trémie d’origine du bâtiment devient un grand patio lumineux.
Il permet d’apporter la lumière naturelle au centre du bâtiment grâce à l’ouverture de la verrière en toiture.
A l’intérieur du patio, de nouvelles façades sont recomposées par de larges ouvertures qui apportent une lumière naturelle et généreuse dans les logements. Ces façades sont revêtues d’un parement brique de couleur ivoire.
L’ambiance du patio est complétée par son sol en bois et des plantations méditerranéennes lui apportant une valeur domestique et chaleureuse. Un puit de lumière amène la lumière naturelle à l’intérieur des commerces situés juste en dessous.
