Médiathèque et MJC
Mission
Architectes et paysagistes (mandataire)
maitrise d’œuvre complète études et suivi des travaux
Maître d’ouvrage
Commune de Montrond-Les-Bains
Surface de plancher 1 645 m²
Montant des travaux 3 389 000 € HT
Concours 2013
Livraison 2017
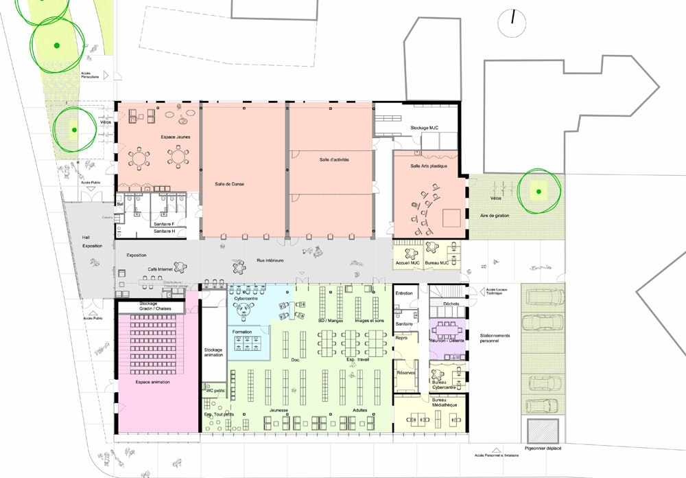
Pôle Culturel emblématique
Le projet de recomposition du site constitue un projet d’envergure, autour d’un pôle culturel, emblématique pour la commune. La médiathèque se positionne dans l’espace public comme un bâtiment générateur d’urbanité.
Elle établit une articulation entre la future voie verte et l’avenue de la Gare marquée par la présence de l’entrée principale sur la rue du Geyser et l’élargissement de l’espace public.
Le prolongement du sol extérieur vers la parcelle voisine 64 et du parking public à travers des espaces verts requalifiés, matérialise son inscription dans le site. Afin de renforcer la communication du bâtiment avec son environnement proche, nous proposons de repousser les limites de la clôture ouest de la parcelle 64 et de combler la piscine.
La façade sud s’ouvre largement sur le cavalier laissant apparaître les différentes espaces interne du bâtiment. Les deux grandes toitures inclinées sont reconnaissables, et lui confère une identité forte. Orientées judicieusement afin de capter la lumière naturelle, chaque pan de toiture abrite : côté sud la médiathèque et côté nord la MJC.
crédits photos : Renaud Araud
