Approfondissement et Modalités de mise en œuvre du projet de Champ Libre – Quartier des Anciennes Beaudottes
Maître d’ouvrage
EPT Paris Terre d’Envol
Surface 23 ha
Montant des travaux 124 470 euros ht
Etudes 2017 (en cours)
Au cœur du Grand Quartier Aulnay-Sevran, le quartier des Beaudottes Savigny est composé de 13 000 habitants, en attente aujourd’ hui d’une intervention forte sur ce secteur.
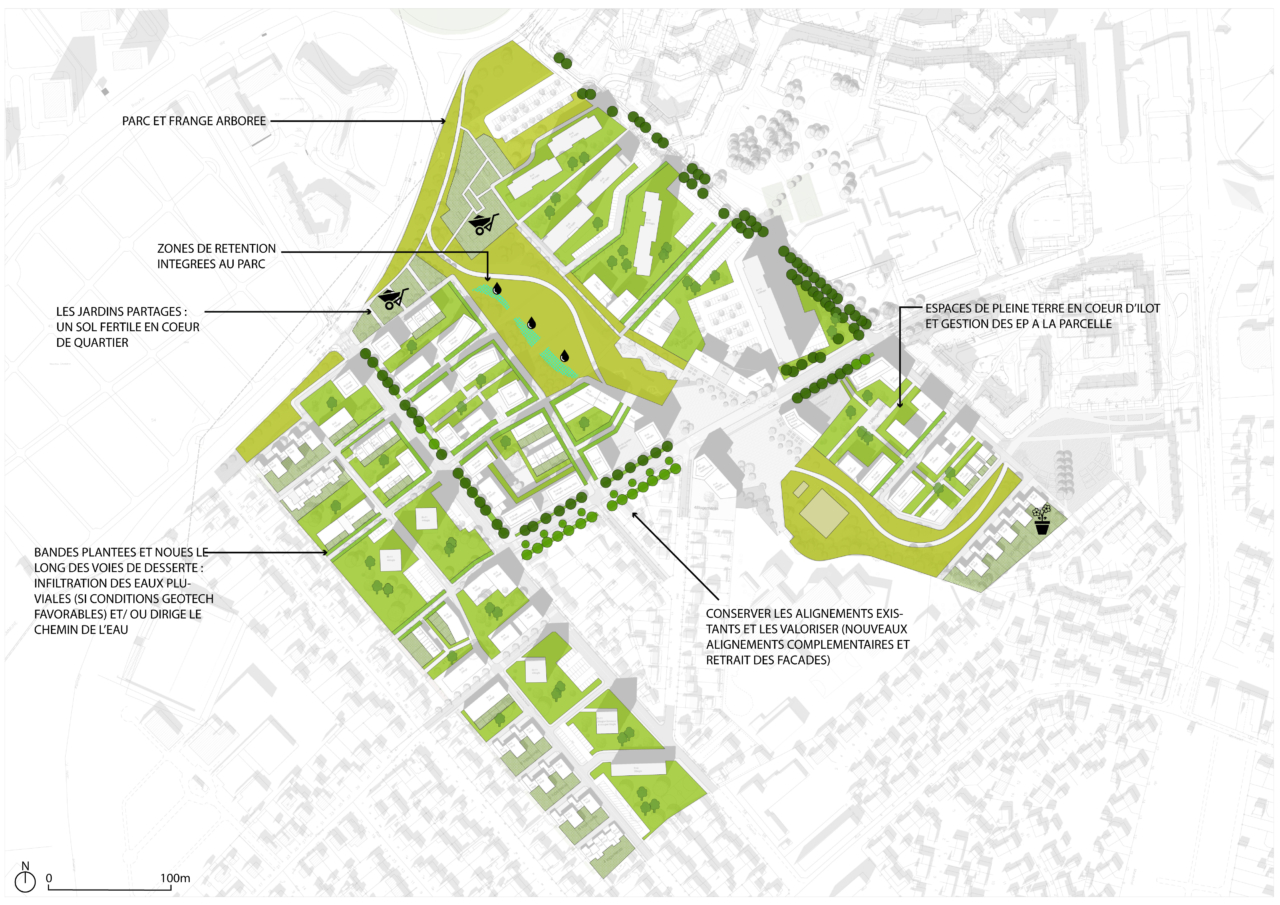
Peu concerné par le précédent projet de renouvellement urbain, la vocation stratégique du secteur des Beaudottes s’est renforcée via l’émergence de nouveaux projets structurants à proximité (nouvelle gare du Grand Paris, Projet Sevran Terre d’Avenir) ou au sein du quartier (Micro-Folie de la Villette). Des différentes études menées sur le secteur, restent aujourd’ hui des principes fondateurs, invariants de composition autour desquelles le projet doit se décliner :
-Le champ Libre, parc urbain et équipement à part entière au sein du quartier
– Une offre culturelle importante, organisée autour d’un tissu associatif bien présent et d’équipements rayonnants au-delà du quartier
– Une trame viaire hiérarchisée, support de déplacements et d’intensité urbaine
Notre mission s’attache donc à réinterroger le sens, l’esprit du projet pour lui décliner une approche résolument opérationnelle.
Nous défendons ainsi une ambition de projet qui s’inscrit dans une démarche de concrétisation à court terme, nécessaire pour répondre aux attentes fortes de la population et des acteurs en place.
